【予約受付中】西12北5 新築住宅 2026.01.16
オススメ物件
新築モデルハウスのご案内です!
※詳細のご案内につきましては、電話・メールにて御気軽にご連絡ください
【モデルハウスの特徴をご紹介】
■ZEH Oriented仕様の省エネ住宅!
■制振装置「MIRAIE」を標準実装し、地震にも強い家!
■トリプルサッシ採用!
■石油高効率給湯器「エコフィール」を搭載!
■省エネ性が高く高性能なフィルターを実装した第一種換気設備!

■建物詳細情報
■販売価格:2,684万円(税込)
<返済例>
■借入金2,684万円(自己資金0万円)
毎月64,126円(3年固定金利0.7%/ 40年返済/ボーナス払い無し ※4年目以降変動有)
■住所 :帯広市西12条北5丁目4-21
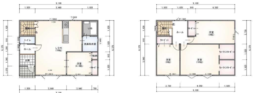
■間取り :4LDK
■敷地面積:165.22㎡(49.87坪)
■建物面積:113.97㎡(34.40坪)
■構 造 :木造軸組み工法(制振装置MIRAIE搭載)
【主要設備・その他】
・給湯設備:灯油ボイラー(エコフィール)
・暖房設備:灯油ストーブ
・換気設備:第一種換気設備
・別途工事:カーテンレール工事・外構工事・BSアンテナ・エアコン本体工事 等
・地目 :宅地
・学区 :帯広市立啓北小学校/帯広市立帯広第一中学校
・用途地域:第一種低層住居専用地域(建ぺい率:50% 容積率:80%)
・確認番号:SKK20253273号
・完成予定:2026年6月末日
